Modern, adaptive unit with movable furniture
- Time: 2020
- In Collaboration with Li Lu, Sae Kim
- CBT Architects
When pandemic hits the society, work-from-home becomes the new normal and is likely to stay as a popular option. However, current multi-family residential offerings in the market are not suited for the new lifestyle. As part of the Post-COVID research series, the Live-Work Unit attempts to accommodate the new requirements with a more flexible unit layout. The proposed unit has deeper floor plate that can also facilitate the office-resi adaptive reuse.

Common office has deeper floor plate and higher ceiling space compared to multi-family buildings.


Based on the study of several studio units on the market, we proposed a unit that has similar square footage but can accommodate the new work-from home lifestyle.

Type A – Folded Bed
Area: 455 SF
Dimension: 13′ x 35′
Number of Residents: 1-2
“Making my bed and hiding it from sight is a ritual to start my working day.”
The activities that people would like to share on their balconies expand from simply viewing, sipping a cup of tea to working, cooking, playing music, or even hosting a wedding ceremony.





Type B – Folded Sofa
Area: 455 SF
Dimension: 13′ x 35′
Number of Residents: 1-2
“I use my bedroom more than my living room and would like to stay this way.”





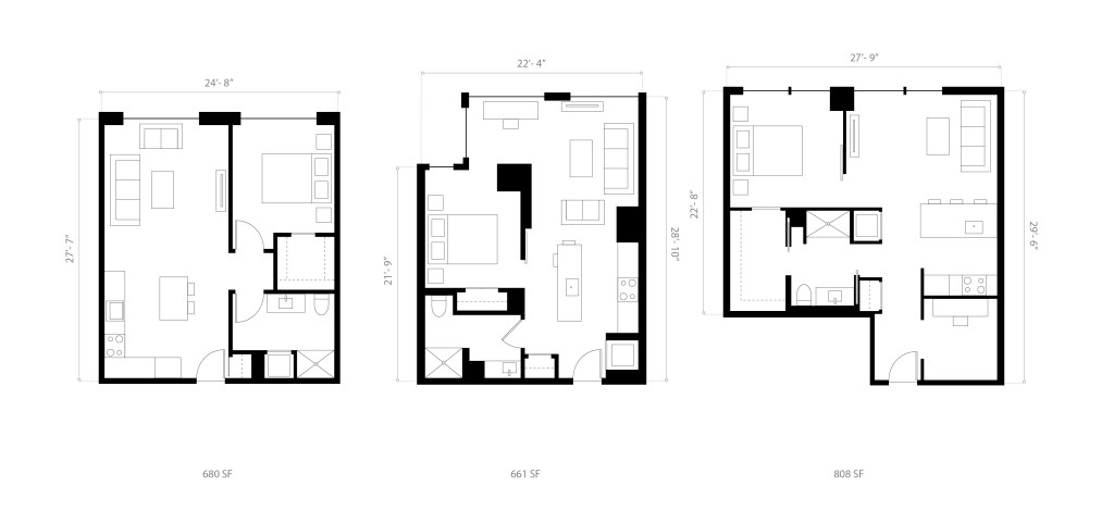
One-bedroom
Area: 684 SF
Dimension: 18′ x 38′
Number of Residents: 2
“A home office that can be separated would be nice.”



With the proposed narrower, deeper units, a generic open office can be transformed into a courtyard apartment.

